€
EUR
£
GBP
kr
SEK
fr.
CHF
₽
RUB
$
AUD
$
CAD
¥
JPY
$
USD
R$
BRL
¥
CNY
₹
INR
Biens Immobiliers
Voulez vendre
Recrutement
A propos de nous
Contact
More
Biens Immobiliers
Voulez vendre
Recrutement
A propos de nous
Contact
0
0
€
EUR
£
GBP
kr
SEK
fr.
CHF
₽
RUB
$
AUD
$
CAD
¥
JPY
$
USD
R$
BRL
¥
CNY
₹
INR
Lotissement de terrain
Aveiro, Aveiro
Retour
\
Lotissement de terrain - Aveiro, Aveiro
Partager Immeuble
Facebook
X
Pinterest
WhatsApp
Copie du lien
Link copiado
Imprimer la fiche
Envoyer la propriété à un ami
Insérer un nom
Insérer un email
Entrez une adresse email valide
Insérer un nom
Insérer un email
Entrez une adresse email valide
J´ai lu et accepte les termes et conditions énoncés.
Savoir plus »
Pour terminer cette opération, vous devez lire et accepter nos conditions.
Champs obligatoires *
Envoyer
Photos
Seguir imóvel
Seguir imóvel
Receba um alerta quando existir uma Baixa de Preço
Nom
Insira o seu Nome
E-mail
Entrez votre email
Entrez une adresse email valide
Li e aceito a
Politique de confidentialité
Pour terminer cette opération, vous devez lire et accepter nos conditions.
Insérer le code de l'image
Code
Envoyer
Lotissement de terrain, Aveiro, Aveiro
250.000 €
Ref:
GF2651
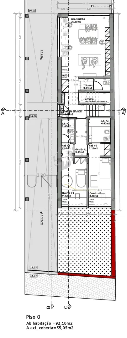
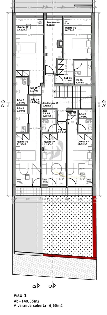
592,1 m²
Type de propriété
Lotissement de terrain
Typologie
0 Chambres
Objectif
Vente
Etat
En Projet
Prix
250.000 €
Année de construction
N/D
Pays
Portugal
Département
Aveiro
Ville
Aveiro
Lieu
Aradas
Zone
N/D
Tiago Couceiro
+351 969 764 815
(Chamada para a rede móvel nacional)
Je veux être contacté(e)
Date
Time
Nom
Insérer un nom
E-mail
Insérer un email
Entrez une adresse email valide
Contact
Entrez votre contact téléphonique
Message
Je demande plus d'informations, sans aucun engagement, à propos de la propriété GF2651
J´ai lu et accepte les termes et conditions énoncés.
Politique de confidentialité
Pour terminer cette opération, vous devez lire et accepter nos conditions.
Code
Insérez le code montré dans l'image.
Envoyer
Simulateur de crédit
Simulateur d´IMT
Valeur de la propriété*
Montant du prêt*
Votre âge*
Durée du prêt *
Mensualité
0.00
€
Le montant de la mensualité présenté n´inclut pas l´assurance vie et l´assurance habitation.
Index
0.000
%
TAEG
0.000
%
Spread
0.000
%
Durée
0
anos
TAN
0.000
%
Simuler
Les informations générées dans ce simulateur sont destinées à fournir des informations à caractère exclusivement indicatif à l'utilisateur, ne conférant aucune valeur contraignante ni à la collecte de données à des fins commerciales.
Localisation de la propriété*
Sélectionner
Portugal continental
Régions autonomes
Finalité*
Sélectionner
Logement permanent
Logement secondaire ou locatif
Bâtiments rustiques
Autres
Valeur de la propriété*
Valeurs complémentaires*
IMT
0.00
€
Droit de timbre (0,8%)
0.00
€
Valeurs complémentaires
0.00
€
Total à payer
0.00
€
Mais informações
Simuler
Les informations générées dans ce simulateur sont destinées à fournir des informations à caractère exclusivement indicatif à l'utilisateur, ne conférant aucune valeur contraignante ni à la collecte de données à des fins commerciales.
Dados de Intermediação de Crédito - (Intermediário de Crédito nº )
Saiba mais sobre a sua simulação
Nom
Campo obrigatório
E-mail
Campo obrigatório
Insira um e-mail válido
Contact
Campo obrigatório
Commentaires
Isto é apenas uma simulação. Esta simulação de crédito não tem fins lucrativos.
Li e aceito a
Politique de confidentialité
Pour terminer cette opération, vous devez lire et accepter nos conditions.
Code
Insérez le code montré dans l'image.
Enviar
Caractéristiques générales
Général
Pièces
Pièces
Lieu
Étage
Murs
Plafonds
Commentaires
Environnement
Commodités
Domotique
Energies Renouvelables
Emplacement de la Propriété
Nous sommes à votre disposition pour vous aider
Je veux être contacté(e)
Date
Time
Nom
Insérer un nom
E-mail
Insérer un email
Entrez une adresse email valide
Contact
Insérez vos coordonnées
Message
Li e aceito a
Politique de confidentialité
Pour terminer cette opération, vous devez lire et accepter nos conditions.
Code
Insérez le code montré dans l'image.
Envoyer
O que é a pesquisa responsável
Esta pesquisa permite obter resultados mais ajustados à sua disponibilidade financeira.